尊龙凯时- 尊龙凯时官方网站- APP下载外滩瑞府(营销中心)官方网站-外滩瑞府销售中心(售楼处)-售楼处电话-电话地址-价格-户型-小区环境-楼盘详情-交房时间-周边配套

发布日期:2026-01-31 13:31:24 浏览次数:

  尊龙凯时,尊龙凯时官方网站,尊龙凯时APP下载☑️☑️华润·外滩瑞府售楼处电话:☑️☑️本周,距离外滩约1km的华润置地外滩全新豪宅作品——外滩瑞府首批次价格正式过会,均价14

  外滩瑞府所在地块,距外滩直线公里,属于外滩、北外滩、陆家嘴传统“黄金三角”的核心范围内,驾车穿越2个红绿灯,即可抵达上海大厦与外滩百年建筑群,其历史地段绝版价值属性无可替代;

  翻开1916年上海地图,以黄浦江与苏州河“一江一河”交汇处为原点,外滩瑞府所在地块,恰处于城市核心第二圈层(1-2公里范围内),与华侨城苏河湾并列,而金陵华庭则位于第三圈层。

  更何况,外滩瑞府14.78万的价格堪称“首开福利”,仅相当于华润外滩九里10号楼楼王14年前的价格水平,甚至更低。

  如此外滩绝版历史地段+华润置地瑞系顶序产品力+首开福利价的惊艳配置,外滩瑞府在当下的北外滩乃至黄金三角核心范围内,都实属稀缺。

  有提到北外滩未来的住宅门槛相当之高,且供应稀缺,完全无法满足未来北外滩中央商务区所带来新增就业岗位的居住需求。

  到今年,楼典又做了一次大北外滩区域(包含外滩源虹口、北外滩、瑞虹以及鲁迅公园)所有在售、待售、待出让的住宅土地盘点,发现了几个惊人的数据:

  首先,大北外滩区域所有可售的住宅项目,住宅规划约108万平方米,其中约14万平方米已经出售,意味着总可售面积约为94万平方米。

  但在94万平方米的可售面积中,其中45.5万平方米规划的是5000万起的风貌别墅项目。

  不到49万平方米中,扣除瑞虹和鲁迅公园版块,位于北外滩核心版块的一共仅有10个项目,可售总套数约1700套,仅有约41万平方米。

  而这十个项目中,定位于2000-4000万,上海主力改善型豪宅的项目仅有5个。

  其次,根据楼典统计,整个北外滩中央商务区,目前建成的甲级办公楼空间约是260万平方米,整体的出租率约是70%,意味着还有近80万平方米的待出租面积。

  包括480米的北外滩中心、上实中心、华贸中心等多个地标项目仍在建设之中。

  总规模约300万平方米的甲级办公楼,未来五年10-12万个新增工作岗位,124万平方米新增办公面积。

  虽然北外滩看到了住宅供应严重不足的情况,也在陆续调整办公与住宅的供应比例。

  绿城北外滩中国地王拍出后,北外滩此前在售的碧云北外滩项目快速去化,而外滩瑞府顺利接棒。

  我们可以以人民英雄纪念碑为圆心,画一个半径1.5公里的圆圈,这个圆圈范围内占地面积约7平方公里毋庸置疑是上海最精华的地段所在。

  洛克外滩源、海泰北外滩、汤臣一品、外滩天潼里以及未来可以出让的少数几块土地,均是亿级以上的产品。

  在这个亿级板块,华润置地做了一个套均2000万左右的产品,均价远远低于周边土地的平均动迁成本与一手的在售价格。更凭借拿地时“中小套型”的特殊要求,成就了难得的入手机遇——2000万级即可入驻外滩黄金三角,如此稀缺的价值高地,堪称当前市场上绝无仅有的入场窗口。

  14.78万/㎡,不仅是外滩一公里生活圈内的限定价格,更是华润置地为购房者特别准备的首开福利。基于其一贯“低开高走”的操盘策略,首开阶段往往是最优入手时机,后续随项目推进价格将持续攀升。

  外滩瑞府,为了匹配外滩一公里生活圈的调性,集结了一个亿级豪宅设计师团队,由GOA大象设计负责建筑,公共区域由渡边智昭设计,景观由TROP事务所设计,室内设计则由W.DESIGN无间设计(吴滨团队)和李益中打造。

  在社区规划上,通过偏转15°的建筑布局,实现约3000㎡的连续中央花园及多处景观视野,东南向高区可同时看到陆家嘴三件套与480米北外滩中心。

  具体到社区景观上,外滩瑞府采用了全域风雨连廊串联所有楼栋和归家动线,实现无雨归家。

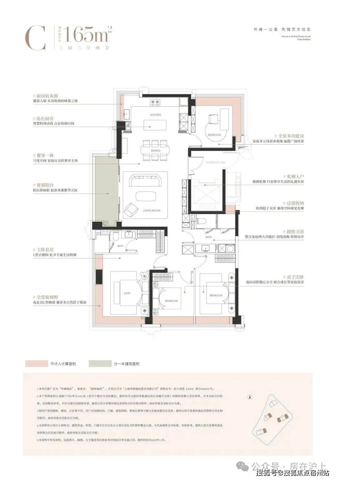
  其中首开将推出的约161㎡4房,也是2025年内环内首个160+㎡面积段做4房的新房产品,中高区的主卧270°转角飘窗可以看到陆家嘴三件套与浦西第一高楼。

  项目拟建4栋24-32层高层住宅,另有少量风貌住宅和商业。网传住宅建面约120-240㎡户型。

  外滩瑞府,正处于城市更新的风口之上——约7000㎡风貌底盘,未来将引入社区咖啡馆、瑞府邻里客厅/社区方式综合店、便民综合体、社区会客厅、社区公共服务中心等,完善便民配套,届时城市界面会迎来大焕新!

  不仅是外部城市界面的焕新,内部设计也是下了血本!来看下外滩瑞府的顶级设计天团阵容:

  公区:渡边智昭(翠湖天地、汤臣一品主创)亲制架空层与会所,植入艺术策展空间;

  景观:泰国TROP事务所融合江南水系与爵士乐律动,打造“声景共生”庭院;室内:吴滨(无间设计)与李益中联袂,以安缦酒店美学定制精装系统;

  外立面上,高层基座溯源石库门建筑精髓,复刻经典拱券符号;中段以通透玻璃幕墙搭配流线型金属线条,营造国际前沿的现代质感;顶部“冠冕”造型,进一步升华昭示性。

  社区景观上,突破市区项目常见的「兵列树阵式」布局,通过建筑楼体的精密偏转,形成罕见的围合式社区形态。

  这样不仅能有楼栋共享中心景观庭院,确保每户推窗即见层次丰富的园林景致;还能最大化楼间距,最大化采光、最大化视野;让中央景观与边角院落形成多维度的空间层次。

  外滩瑞府特邀国际景观大师 Pok Kobkongsanti打造“印象派自然秘境”。六大主题花园错落分布,贯穿全域的风雨连廊串联起四季景致,共同演绎出一座流动的艺术生活范本!

  他以颠覆性思维突破传统局限,不仅匠心打造独立“室内外双幕水剧场”,更创造性地将高阶社交功能分散于四栋塔楼之下,规划出

  ☑️☑️华润·外滩瑞府售楼处电线m面宽的气派门头+酒店式入户大堂,打造艺术格调归家。入户大堂由吴滨设计,呈现“天圆地方”的效果,方正的线条勾勒出空间的规整与大气,与顶部的圆形形成刚柔并济的视觉平衡,让每一次归家都成为一场尊贵的礼遇。

  归家仪式感,是顶豪生活的重要组成部分,而外滩瑞府将这种仪式感从地库便已开启。以“光岛” 为理念重塑地库,星级坡道的光影走廊、艺术玄关的静心序厅、专属落客区、中央洗车房与私家车位系统

  据悉,华润外滩瑞府三批次将推约124-165㎡3-4房,共计93套房源,均价14.85万/㎡,目前正在认购!

  外滩瑞府三批次主力户型建面约124-165㎡,其核心突破在于,它不再以单一的“大面积”作为价值标尺,而是真正实现了对不同家庭结构、不同生命周期居住需求的深度回应,践行了“家庭成员价值平权”的现代居住理念。

  建面约124㎡经典的三房布局,高效满足主流家庭的居住需求,每一房间均设计有观景飘窗,让外滩的天际线成为日常生活的背景。创新的S墙设计与南向次卧“可开可合”的灵活隔断,在有限面积内实现了功能与美感的精妙平衡。

  设计打破传统四房格局的固定性,业主可根据家庭结构及功能偏好,自主决定南向次卧的空间形态:既可保留为独立卧室,亦可打通并入活动区域,改造为书房、兴趣空间或扩展社交厅,赋予了更强的包容性与生长性,实现从“被动接受”到“主动定义”的居住方式升级。

  从万国建筑群到外滩源,从外白渡桥到上海大厦,商业、艺术、文化、外交的发展史,曾在这些穿越百年的建筑布景中上演,外滩一英里串联起半部中国近代史。

  百年历史建筑构成「远东华尔街」实景博物馆,上海证券交易所等国家级金融要素市场隐匿其间,资本脉搏与历史肌理同频共振。

  新旧共生的艺术结界,历史保护建筑,融合当代艺术展览与先锋商业,形成「可触摸的文化会客厅」。

  北外滩,一个国家级的彼岸对话,融汇传奇历史与超前规划,承载着上海步入全球卓越城市的时代价值引擎,与项目一街之隔,未来将与外滩、陆家嘴,打造功能复合、新旧融合的全球城市顶尖中央活动区、世界级会客厅。

  未来将引入全球金融机构亚太总部,与陆家嘴「上海中心」形成「浦西浦东双子塔」地标。

  项目处于陆家嘴-外滩-北外滩“黄金三角”的关键腹地,与外滩直线公里,与陆家嘴直线万m城市更新体量,以众心捧月之势,执掌比肩全球的至贵生活圈。

  外滩瑞府与上海音乐谷分列虹口港两岸,在「高密度艺文生态圈」,构筑有高级烟火气的艺术文化社区。

  商圈叠加:南京东路-外滩商圈、人民广场商圈、苏河湾商圈、北外滩商圈、瑞虹商圈环绕叠加

  三纵:外滩隧道,直达外滩金融商业街以及老码头;新建路隧道,可快速直达陆家嘴CBD;南北通道(规划中),缓解南北高架压力,快速通达南北

  两横:北横通道,延安高架路,贯穿浦西重要节点,快速通达虹桥机场/虹桥火车站/世纪公园

  三甲医院:上海市第一人民医院、上海四--医院、上海市中医医院、上海中西医结合医院、仁济医院(西院)

  全龄教育:虹口区中州路第一小学、虹口区教育学院实验中学、虹口区东余杭路幼儿园、虹口区西街幼儿园、民办新华初级中学、上海外国语大学附属北外滩学校(筹,原虹口一中心小学)、上海外国语大学虹口校区(入学条件以教育局招生规则为准)

  集结具有先锋理念、相关成功案例与项目属性匹配的大师团队,以国际先锋的视角、艺文生活者的角色,与外滩瑞府聚力共创。